ID 39883
Дом в коттеджном поселке «Довиль» , 697 м²
10 км от МКАД,
Минское шоссе
570 400 000 ₽
697 м²
Под ключ с мебелью
30,65 соток
5 спален
4 этажа
5 санузлов
Коммуникации
Магистральное
Центральная
Электричество 25 кВт
Центральное
Сэкономьте время — мы сами вам позвоним!
Заказать звонок
описание
Продается новый дом площадью 697кв.м с полной отделкой "под ключ", меблирован, готов к проживанию.
Планировка дома.
1 этаж: прихожая, холл, гостиная, кухня, кладовая, кабинет, санузел, гардероб;
2 этаж: холл, мастер спальня с большой гардеробной и ванной комнатой, коридор, гостевая спальня 1 с ванной комнатой и гардеробной, гостевая спальня 2 с гардеробной и санузлом;
3 этаж: холл, просторная игровая, котельная, детская комната с гардеробной и ванной комнатой, детская комната, санузел, техническая комната;
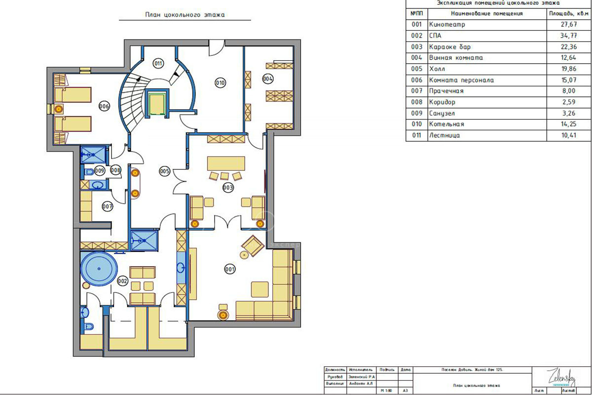
Цокольный этаж: холл, домашний кинотеатр, зона СПА с джакузи, караоке бар, винная комната, холл, комната персонала, санузел, прачечная, котельная.
Отдельно от основного дома расположен дом для персонала с 2 спальнями, гаражом на 1 машиноместо и крытой стоянкой на ещё одну машину.
Красивый лесной участок площадью 30 соток со взрослыми соснами. От участка 5 минут спокойной прогулки до набережной вдоль природного озера площадью 16га.
В посёлке хорошая собственная инфраструктура: ресторан европейской кухни, красивая ротонда для проведения торжеств, уютные парковые аллеи, лодочная станция с пирсом, летний открытый бассейн, свой фитнес-центр.
Удобное расположение между Минским и Можайским шоссе, есть возможность подъезда со стороны платной трассы (в обход г.Одинцово). До г. Одинцово 7 минут на машине.
Рядом несколько муниципальных и коммерческих образовательных учебных заведений высокого уровня, магазины, клинический госпиталь в Лапино (12 минут).
Расположение
Минское шоссе
10 км от МКАД,
О поселке
Минское шоссе, 10 км от МКАДа. Жилой посёлок класса Delux с хорошей внутренней инфраструктурой.
Помимо фитнес клуба в самом КП «Довиль» есть ресторан, свадебный павильон, торговая площадь с кафе, антикварной лавкой и отделением банка, спортивная площадка, прогулочно парковая зона вдоль берега озера, лодочная станция.
Жителям коттеджного поселка «Довиль» доступна вся инфраструктура Минского и Можайского шоссе. ТЦ «Конфитюр» находится в шаговой доступности. Рядом Московская экономическая школа (отделение Зайцево), Успенский лицей (частная школа премиум-класса).
ТРЦ «Городок» в Одинцово (3км), ТЦ «Dream House» в Барвихе (9км). Частный детский сад «Непоседы» располагается в 4 км, так же и МБОУ Дубковская СОШ «Дружба». Недалеко расположены Английский детский сад «Sun School», Детский сад «Венда», Британский детский сад в Лапино, Детский сад «Президент», Гимназия «Жуковка», Международная английская школа, Частная школа «Венда», Частная школа «Премьерский лицей», Частная школа «Сосны», Школа «Президент». Также различные фитнес-студии, студии йоги: фитнес-клуб «BodyTime», фитнес-клуб «Dr.Loder», «Азбука Красоты» - все это в 4-5 км езды. Рестораны «О Шалей» и «Chester Ferry» в КП «Николино» в 20 минутах от КП «Довиль». Для отдыха на природе можно посетить усадьбу «Перхушково» в 18 км, усадьба «Назарьево» в 16 км. Узнать больше







































































































